|
|
| |
MARINE DOCK SYSTEMS
45 Wellington Street Riverstone N.S.W 2765 Australia Ph: +61 2 9627 5577
26 Corbould Rd Coolum Beach Qld 4573 Australia Ph: +61 7 5324 1557
Home 
Email 
Enquiry  Links
| |
|
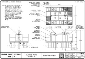
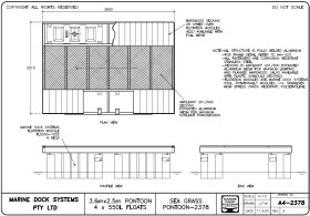
550 LITRE FLOTATION MODULE
This float has been specifically designed for use under 'Sea Grass' pontoons and 'Effluent Treatment' pontoons.
The narrow width and larger depth of the floats allows us to build pontoons with much smaller water plane area in comparison to deck area.
Floats can be filled with water or concrete to add ballast to increase stability.
Ballast can also be used to raise and lower the float for different freeboard requirements. Floats can also be foam filled for extra security if required.
Max load 250kg, 400kg when foam filled
Product weight 34kg,55kg foam filled.
Large Detailed Drawings a4-1052 - 550 Litre float
a4-1052 - 550 Litre float
|

|
|
| |
MARINE DOCK SYSTEMS
45 Wellington Street Riverstone N.S.W 2765 Australia Ph: +61 2 9627 5577
26 Corbould Rd Coolum Beach Qld 4573 Australia Ph: +61 7 5324 1557
Home 
Email 
Enquiry  Links
| |
|
|
|